
השקעות נדל"ן בחו"ל » השקעות ביוון » Delta Home Community – Thessaloniki: הרבה יותר מרק מגורים
הזדמנות השקעה בלב הקהילה הסטודנטיאלית והתעשייתית של סלוניקי
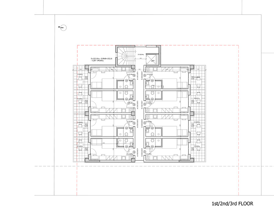
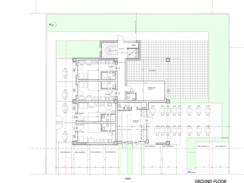
פרויקט Delta Home Community (DHC) מציג תפיסת מגורים חדשנית בעיירה סינדוס, סלוניקי. הפרויקט מציע 57 דירות סטודיו מודרניות המיועדות לקהילה צומחת של סטודנטים וצעירים תוך דגש על יצירת סביבת חיים שיתופית ואיכותית.
הפרויקט מורכב משני בניינים חדשים (28 ו-29 דירות) שנבנו בסטנדרטים אירופאים מחמירים:
הפרויקט צפוי להימשך כ-18 חודשים מרגע קבלת היתר הבנייה (צפי להיתר: ספטמבר 2026). התשלום מתבצע ב-10 פעימות בהתאם להתקדמות הבנייה בשטח.
למה להשקיע ב-Delta Home Community?
בניגוד לדירות מגורים רגילות, אנחנו בונים קהילה. השילוב בין מיקום אסטרטגי ליד האוניברסיטה, מפרט טכני גבוה ושירותי ניהול מקיפים הופך את הנכס לבוטיק מניב בראש שקט.
מעוניינים לשמוע עוד? צרו קשר לתיאום פגישה אישית וליווי צמוד לאורך כל הדרך. אופיר הררי – נדל”ן מניב לעתיד בטוח.
המידע המופיע במסמך זה מבוסס על התוכנית העסקית ונתונים צפויים נכון למועד הפרסום.







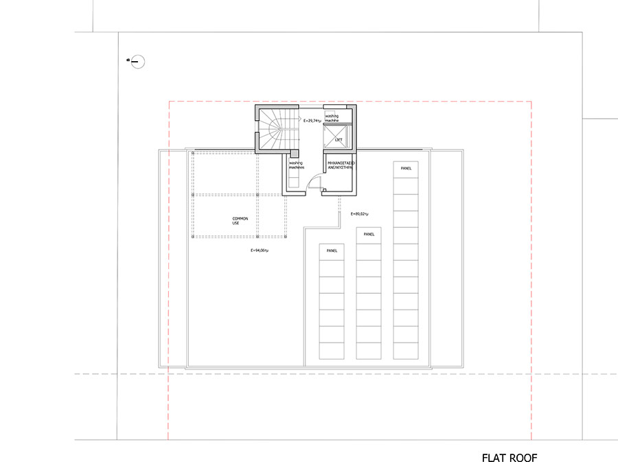
מתחם הקהילה בפרויקט Delta Home Community תוכנן במטרה להציע הרבה יותר מאשר רק פתרון מגורים סטנדרטי, אלא ליצור סביבה חברתית ושיתופית עבור דייריו. להלן פירוט של מה שהמתחם כולל והאופן שבו הוא מוסיף ערך למשקיעים ולדיירים כאחד:
מה כולל מתחם הקהילה?
המתחם מורכב מ-57 דירות סטודיו מודרניות בשני בניינים, המוקפים בשטחים ציבוריים עשירים:
איך המתחם מוסיף ערך?
התפיסה הקהילתית של הפרויקט מייצרת יתרונות משמעותיים:
לסיכום, הערך המוסף של המתחם טמון בטרנספורמציה של “דירה” ל”מרכז חיים”, מה שמחזק את הביקוש, מעלה את ערך הנכס ומבטיח תשואה יציבה באזור אסטרטגי צומח.
בפרויקט Delta Home Community, שיטת התשלום מתבצעת ב-10 פעימות לאורך כל חודשי הפרויקט (ממועד קבלת היתר הבנייה ועד למסירה), וזאת בהתאם להתקדמות הבנייה בשטח,.
להלן פירוט הפעימות כפי שמופיע במקורות:
נקודות חשובות:
חברת הניהול בפרויקט היא שובל יזמות (בשמה הרשמי: SHOVAL SHEMI ENTREPRENEURSHIP AND CONSTRUCTION SINGLE-MEMBER S.Α), שהיא גם החברה היזמית והמבצעת של הפרויקט.
אחריות חברת הניהול כוללת:
עלויות ונתונים נוספים:
הערה : לבעל הנכס ניתהת האפשרות להחליף את חברת הניהול כרצונו.
פעימות התשלום בפרויקט Delta Home Community מחולקות ל-10 שלבים עיקריים, התואמים את התקדמות הבנייה בשטח ומבטיחים שקיפות למשקיע. להלן הפירוט המלא של התשלומים:
שלבי התשלום הראשוניים
שלבי הבנייה והשלד
שלבי עבודות הגמר (6 פעימות של 5% כל אחת)
חמשת האחוזים הנותרים עבור כל פעימה משולמים בהתאם להתקדמות הבאה:
דגשים וכללים חשובים:
הדירות בפרויקט Delta Home Community מגיעות מרוהטות ומאובזרות לחלוטין (“עד רמת הווילון”), במטרה להפוך אותן למוכנות למגורים או להשכרה באופן מיידי.
להלן פירוט הציוד והריהוט הכלולים בכל דירה לפי המקורות:
מוצרי חשמל
ריהוט
אבזור נוסף ומרפסת
הריהוט והציוד מסופקים למשקיע כחלק מפעימת התשלום העשירית והאחרונה, המלווה בקבלת המפתח ואישור האכלוס.
תהליך הרישום בטאבו היווני (Land Registry) במסגרת פרויקט Delta Home Community מובנה ומלווה על ידי אנשי מקצוע כדי להבטיח את זכויות המשקיע. להלן שלבי התהליך כפי שהם עולים מהמקורות:
כבר בשלב הראשוני, תוך 10 ימים מחתימת בקשת השירות, המשקיע חותם על ייפוי כוח נוטריוני המייפה את כוחה של החברה היזמית לפעול בשמו לצורך רכישת הדירה. הדבר מאפשר לחברה לקדם את הרישום והבירוקרטיה ביוון עבור המשקיע.
לפני הרישום הסופי על שם המשקיע, החברה מבצעת שני צעדים קריטיים:
הרישום בפועל בטאבו היווני מתבצע בפעימה הראשונה (לאחר דמי השריון), הכוללת תשלום של 28% ממחיר הרכישה.
לסיכום, הרישום בטאבו היווני מתבצע בשלב מוקדם מאוד של הפרויקט (עם קבלת היתר הבנייה והתשלום העיקרי הראשון), מה שמעניק למשקיע ביטחון ובעלות משפטית מלאה על הנכס כבר מתחילת הדרך.
האוניברסיטה הסמוכה לפרויקט, האוניברסיטה ההלנית הבינלאומית (International Hellenic University), מתאפיינת במספר נקודות ייחודיות ההופכות אותה לעוגן מרכזי באזור סינדוס:
בנוסף, האוניברסיטה מפעילה שאטלים (הסעות) עבור הסטודנטים מתחנת הרכבת לקמפוס, מה שמקל על הנגישות ומחבר את הקהילה האקדמית למרכז סלוניקי בנסיעה קצרה.
על פי נתוני האוניברסיטה המופיעים במקורות הסטודנטים בקמפוס סלוניקי (סינדוס) לומדים במגוון רחב של פקולטות ומחלקות המרכיבות את האוניברסיטה ההלנית הבינלאומית (IHU).
להלן רשימת הפקולטות והמחלקות הפועלות בסלוניקי/סינדוס כפי שהן מוצגות באתר האוניברסיטה:
זוהי אחת הפקולטות המרכזיות בקמפוס, הכוללת את המחלקות הבאות:
הפקולטה מציעה תוכניות לימוד טכנולוגיות מתקדמות:
בסלוניקי פועלות המחלקות הבאות:
המתמקד בתחומי החקלאות והמזון:
בנוסף לפקולטות הרגילות, קיים מרכז המציע תוכניות באנגלית תחת שני בתי ספר:
משמעות עבור הפרויקט: השילוב בין פקולטות מעשיות (כמו הנדסה וכלכלה) למקצועות מבוקשים (כמו מדעי הבריאות) מושך לקמפוס סינדוס מעל 20,000 סטודנטים. ביקוש זה, הנובע מקהילה אקדמית יציבה וגדולה, הוא הבסיס לצורך המתמיד בדיור איכותי בקרבת האוניברסיטה.
נעים מאוד
אופיר הררי עובד בשיתוף פעולה עם יזמים מובילים. ניסיונו בענף הנדל”ן מאפשר לו לחבר בין הצורך של הלקוח למציאת נכס נדל”ני שמניב תשואה קבועה ובטוחה בחו”ל ובין יזמים של פרויקטים מצליחים באנגליה, וברחבי אירופה.
מעוניינים להיות בעלי נכס?
רוצים לקבל מידע נוסף על השקעה בטוחה בנדל”ן המיועד למגורי סטודנטים ביוון – צרו קשר>
לפרטים נוספים מוזמנים לפנות לאופיר הררי – יועץ להשקעות בנדל”ן בחו”ל